North Carolina Construction News staff writer
A new affordable apartment complex is planned for Greensboro for individuals facing housing insecurity.
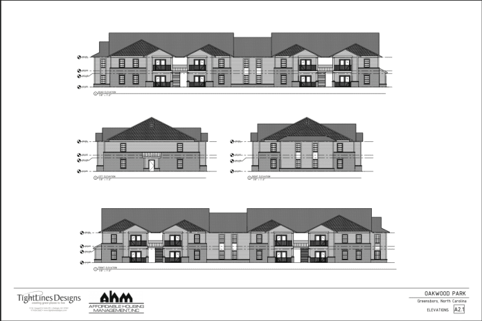
Oakwood Park, a two-story development will be built on West Vandalia Road. Rent for the 16-unit building will be aimed at households making at or below 50% of area median income.
“The 16 new apartment homes are another step in the city’s ongoing efforts to partner in the provision of permanent supportive housing for homeless households and increase the affordable rental housing stock,” said Cynthia Blue, assistant director for housing and strategy.
The North Carolina Housing Finance Agency recently awarded Greensboro’s Affordable Housing Management, Inc. (AHM) $2.6 million to develop the project.
“The new apartment homes will be very attractive, have ample square footage and be Energy Star certified providing better energy efficiency and performance resulting in lower utility and maintenance costs,” said David Levy, AHM assistant secretary. “The reduced electric cost and below market rents will provide extremely affordable homes near shopping, restaurants, services, major roads, and employment centers.
Hester Park, a large city park offering many recreational amenities, is also located across the street.”
AHM will partner with Greensboro Urban Ministry for applicant referrals and casework for future residents.
Levy says the development is one part of the organization’s three-phase project that could bring a total of 184 affordable housing units to Greensboro.
Construction for Oakwood Park will begin this summer and is expected to be completed in one year.


Good Morning, I’m looking for information on the new apartment called Oakwood Park on W. Vandialia in Greensboro. Where can I get an application?